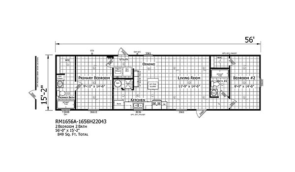
Redman Singlewides - RM1656A-1656H22043

Manufactured

Overview

  • 2
    Bedrooms
  • 2.00
    Bathrooms
  • 849
    Sq ft
  • 56' 0" x 15' 2"
    L x W
RM1656A-1656H22043

3D Tours & Videos

No 3d Tour Available

Floor Plan

Specifications

Additional Specs: Rolled Steel I-Beam / 3/8" Factory Select Gypsum / 10" Hitch
Exterior Wall Studs: 2x4 Exterior Walls
Floor Decking: OSB Floor Decking
Floor Joists: 2x6 Floor Joists
Side Wall Height: 8' Flat Ceiling
Insulation (Floors): R-11 Floor Insulation (nom)
Insulation (Walls): R-11 Wall Insulation (nom)
Insulation (Roof): R-14 Roof Insulation (nom)
Front Door: Cottage Front Door
Rear Door: Cottage Rear Door
Shingles: Shingles - 25 year / 3 tab
Siding: Vinyl Siding - Foam Core
Window Type: 61" Therm Wndws-Crdless Blinds
Exterior Lighting: Ext. Lights (Jelly Jar) @ Each Door
Ceiling Texture: S/E Textured Ceilings
Interior Doors: 2 Panel Square Doors / Interior Door Jambs
Interior Lighting: 4" Led Can Lights
Interior Flooring: ArmorFlor Lino Throughout
Cabinetry & Counters: MDF Shaker Cab Doors / 32" Overhead Cabinets / Center Shelves Base & Island / 3/4" MDF Stiles / Refrigerator Overhead Shelf
Additional Specs: Flat Interior Trim / Cordless Blinds - T/O / Wire Shelves @ Closets / 3/8" Vinyl Over Gypsum
Electrical Service: 200 AMP Service / A/C Conduit / Exterior Recept Std Location
Furnace: Electric Furnace (Size TBD)
Washer Dryer Plumb Wire: Wire & Vent for Dryer
Water Heater: 30 gal. Electric Water Heater
Bathroom Sink: Acrylic Sink - Bath Std
Bathroom Shower: Tub/Shower 60" 2 pc. Std
Bathroom Mirror: Mirror @ Each Sink
Kitchen Sink: 8" Stainless Steel Sink
Kitchen Refrigerator: 18' Frost Free Refer
Kitchen Range Type: Electric Range

Home details

  • Built byChampion Homes
  • Property typeManufactured
  • StyleRanch
  • Stories1
  • Sections1
  • Bedrooms2
  • Bathrooms2.00
  • Square feet849
  • Length56' 0"
  • Width15' 2"

Find something different

Proudly offered by

Chance's featured tours

Series - Model

  • Beds: 5
  • Baths: 3
  • Sq ft: 2,203

Series - Model

  • Beds: 5
  • Baths: 3
  • Sq ft: 2,203

Series - Model

  • Beds: 5
  • Baths: 3
  • Sq ft: 2,203