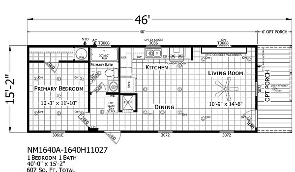
New Moon - NM1640A-1640H11027

Manufactured

Overview

  • 1
    Bedrooms
  • 1.00
    Bathrooms
  • 607
    Sq ft
  • 40' 0" x 15' 2"
    L x W
NM1640A-1640H11027

3D Tours & Videos

No 3d Tour Available

Floor Plan

Specifications

Additional Specs: Detachable Hitch / Rolled Steel I-Beam
Exterior Wall Studs: 2x4 Exterior Walls
Floor Decking: OSB Floor Decking
Floor Joists: 2x6 Floor Joist
Side Wall Height: 8' Flat Ceiling
Insulation (Floors): R-11
Insulation (Walls): R-11
Insulation (Ceiling): R-14
Dormer: 14' Dormer
Front Door: 38x82 Residential Door w/ Peep
Rear Door: Cottage Door
Shingles: Shingles - 25 yr/3 tab
Siding: Vinyl Siding over Foam Core
Window Type: Thermal Windows w/ Cordless Blinds
Exterior Lighting: Ext Lights (Jelly Jar) at each Door / Exterior Recept @ Std. Location
Ceiling Texture: S/E Textured Ceilings
Window Type: Mulled Windows - Living (Per Print) / 30x72 Windows - Dining (Per Print) / 30x08 Transom @ Bathrooms / 14x40 Window - Master Bath
Interior Doors: 2 Panel Arch Top Doors / 30" Louver Utility Door
Interior Lighting: 4" LED Can Light
Additional Specs: Receptacle & Cable Jack @ Ent Center / USB Charger 15A @ Std. Location
Electrical Service: 200 AMP Service
Furnace: Electric Furnace
Washer Dryer Plumb Wire: Plumb For Washer / Dryer
Water Heater: 30 gal. Electric Water Heater
Bathroom Cabinets: 3 Door Linen Cab - Master Bath / 3 Door Linen - Second Bath / Ent Center w/ Floating Shelves
Bathroom Sink: China Sink
Bathroom Flooring: Challenger Linoleum
Bathroom Countertops: Standard Countertops
Bathroom Shower: 60x48 1 Pc. Shower in MB / 60" 2 Pc. Tub/Shower in Guest Bath
Kitchen Sink: 6" Stainless Steel Sink
Kitchen Refrigerator: 18' Frost Free Refrigerator
Kitchen Range Type: Electric Range
Kitchen Range Hood: Euro Vent A Hood
Kitchen Lighting: Glass Pendant Lights over Island
Kitchen Flooring: Challenger Linoleum
Kitchen Dishwasher: Whirlpool Dishwasher
Kitchen Countertops: Standard Countertops
Kitchen Cabinetry: MDF 42" Overhead Cabinets / MDF Shaker Cab Doors / Hidden Cab Hinges w/ Knobs / 3/4" MDF Stiles / Cabinet Trim / Center Shelves & Lined Cabs / Refrigerator Overhead Cubby
Kitchen Additional Specs: Kitchen Island / 3" Self Edge at Island
Ceiling Fans: Ceiling Fan w/Light - Living

Home details

  • Built byChampion Homes
  • Property typeManufactured
  • StyleRanch
  • Stories1
  • Sections1
  • Bedrooms1
  • Bathrooms1.00
  • Square feet607
  • Length40' 0"
  • Width15' 2"

Find something different

Proudly offered by

Chance's featured tours

Series - Model

  • Beds: 5
  • Baths: 3
  • Sq ft: 2,203

Series - Model

  • Beds: 5
  • Baths: 3
  • Sq ft: 2,203

Series - Model

  • Beds: 5
  • Baths: 3
  • Sq ft: 2,203