Tempo - Wonderful World 52TMR28563BH

Manufactured

Overview

  • 3
    Bedrooms
  • 2.00
    Bathrooms
  • 1493
    Sq ft
  • 56' 0" x 28' 0"
    L x W
Wonderful World 52TMR28563BH

3D Tours & Videos

No 3d Tour Available

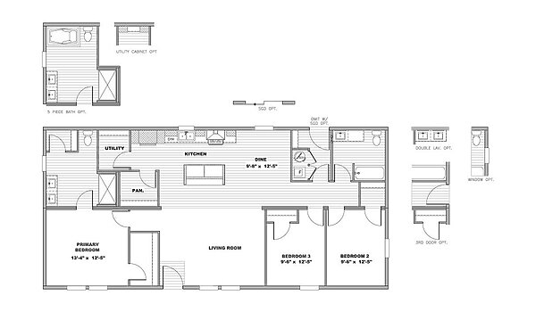
Floor Plan

Specifications

Ac Ready: Heat Pump / Air Conditioner Ready / Whole House Ventilation System
Additional Specs: eBuilt Home / Energy Star Certified / Vented Ridgecap (50% of Ridgeline) / Housewrap Under Siding - All Around / Smart Panel Soffit - Vented / 8" Cement Facia w/ Painted Drip Edge to Match / 9" Setback Frame / Brown Composite Porch Decking (if Applicable)
Exterior Wall On Center: 16" o.c.
Exterior Wall Studs: 2" x 4" Kiln Dried Exterior Walls
Floor Decking: 19/32" T&G OSB Floor Decking
Floor Joists: 12' Wide Floors = 2 x 6 Floor Joists - 16" o.c. / 13' 4" Floors = 2 x 6 Floor Joists - 16" o.c. / 13' 4" Wide Floors = 2 x 6 Floor Joists - 16" o.c. / 15' Wide Floors = 2 x 6 Floor Joists - 16" o.c.
Interior Wall On Center: 24" o.c.
Interior Wall Studs: 2 x 3 Interior Walls
Roof Load: 30# Roof Load - 24" o.c. Rafters
Side Wall Height: 8' Sidewalls w/ Flat Ceilings
Insulation (Floors): R 22
Insulation (Walls): R 11
Insulation (Roof): R 38
Eaves: Single Section Homes = 4 1/2" Sidewall & 12" Endwall (Nominal) / Multi Section Homes = 6" Sidewall & 12" Endwall (Nominal)
Additional Specs: Spring Doorstops - All Exterior Doors / Satin Finish Vista Brand Exterior Paint
Dormer: 16' Dormer and/or Accent Paint Areas (per plan/per order) / 8" x 1" Faux Column Trim at Dormer
Front Door: 36" Craftsman Fiberglass w/ Matte Black Thumblatch
Rear Door: 36" 9 Lite Fiberglass w/ Brushed Nickel Egg Knob
Roof Pitch: 3/12 Roof Pitch On 24W and 2.29 / 12 On 28W
Shingles: Architectural Shingles - Color: Weathered Wood
Siding: Hardie Cement Fiber Vertical Siding With Z-Bar Metal Flashing
Window Trim: 4" x 5/16" Flat Ext. Window and Door Trim on All Sides
Window Type: White Vinyl Framed, Argon Gas, Low "E" Windows
Exterior Lighting: Black Lantern Style Exterior Light w/ LED Bulb - Front Door / Jelly Jar Style Exterior Light w/ LED Bulb - Back Door(s)
Exterior Outlets: Exterior GFI Receptacle (2) - Front and Back - Per Print
Baseboards: 3 1/2" White Baseboard Throughout (Closets w/ Doors & Pantries = 2" Batton)
Ceiling Type Or Grade: 2 1/4" White Ceiling Trim (Closets w/ Doors & Pantries = 2" Batton)
Safety Alarms: Combination CO / Smoke Detector
Window Type: White Cased Window Wrap - All Windows
Wall Finish: Orange Peel Drywall Texture / Square Drywall Corners
Interior Doors: White Cathedral Interior Doors w/ 3 Hinges / 2 1/4" White Door Casing (Closets w/ Doors & Pantries = 2" Batton)
Interior Lighting: Recessed LED Lights - Per Electrical Print
Interior Flooring: LUX Aged European Oak LX 311 - Vinyl Sheet Flooring - Per Print
Cabinetry & Counters: Wire Shelving in Closets, Linens and Pantries / Full Hardwood Cabinet System - Doors, Face Frames and Sidepanels / 42" Overhead Cabinets / Flat Crown Moulding on Overheads / Blonde Maple Lined Base & Overhead Cabinets / Cabinet Matched Liner Behind Refrigerator / 1 Fixed Half Shelf in Base Cabinets (1/2" Thick w/ Cleats) / 1 Fixed Shelf in Overhead Cabinets (1/2" Thick w/ Wrapped Cleats)
Interior Paint: Interior Paint = Greek Villa SW 7551 (Flat Finish)
Carpet Type Or Grade: 25 oz. New Wave Carpet - Color: Weathered (Multi Sections Only) - Shipped Loose / 5# Carpet Pad
Electrical Service: 200 Amp Electrical Service / Solar and Wind-Ready w/ 1" Conduit
Furnace: Energy Star Certification N/A with electric Furnace
Heat Duct Registers: In-Floor Crossover Heat Duct System
Other: Hose Bibb (2) - Front and Back - Per Print
Shut Off Valves Throughout: Whole House Master Water Shut-Off Valve
Thermostat: ecobee Programmable Thermostat
Washer Dryer Plumb Wire: Plumbed and Wired for Clothes Washer & Dryer
Water Heater: Rheem 40 Gallon Hybrid Heat Pump Water Heater
Water Shut Off Valves: Shut Off Valves at all Sinks and Commodes
Door Hardware: Brushed Nickel Egg Shaped Interior Door Knobs
Bathroom Cabinets: Bathroom Cabinets - Studio Beige or Bishop Oak
Bathroom Sink: Square China Sink w/ Pop Up
Bathroom Lighting: 1 Recessed LED Light - Secondary Bedrooms / Recessed LED Lights Over Bath Sinks
Bathroom Countertops: Laminate Countertops - Color Per Order Specs
Bathroom Faucets: Weller - Brushed Nickel 2 - Handle Faucets / Low Flow Faucets and Shower Fixtures
Bathroom Fans: Power Exhaust Bath Fan
Bathroom Additional Specs: Privacy Locks on all Baths
Bathroom Backsplash: 4" Laminate Backsplash Throughout (NO Sidesplash)
Bathroom Shower: 60" Fiberglass Double Seat Shower w/ Framed Door (Most Baths) - See Print / Fiberglass 60 x 32 Tub Shower - Center Drain guest baths
Bathroom Toilet Type: Elongated Stool
Bathroom Mirror: Framed Mirror
Kitchen Sink: 8" Deep 50/50 Top Mount Stainless Steel Sink (33"x 19")
Kitchen Refrigerator: Samsung SST 18 cu. ft. Refrigerator w/ Top Freezer
Kitchen Range Type: Samsung SST 30" Electric Self Clean Free Standing Range
Kitchen Range Hood: Samsung SST 36" Euro Canopy Rangehood Vented Thru Ceiling
Kitchen Faucets: Brushed Nickel High Arch Pull Down Single Lever Faucet
Kitchen Drawer Type: Metal Roller Drawer Guides / Bank of Drawers - Kitchen (2 Large & 1 Small)
Kitchen Dishwasher: Samsung SST Dish Washer
Kitchen Countertops: Laminate Countertops - Color Per Order Specs
Kitchen Cabinetry: Kitchen Perimeter Cabinets - Studio Beige or Bishop Oak / Island Bar Cabinets - Onyx Black or Plover
Kitchen Backsplash: 4" Laminate Backsplash Throughout (NO Sidesplash)
Ceiling Fans: Wire & Brace for Fan - Living Room and Primary Bedroom

Home details

  • Built byClayton Tempo
  • Property typeManufactured
  • StyleRanch
  • Stories1
  • Sections2
  • Bedrooms3
  • Bathrooms2.00
  • Square feet1493
  • Length56' 0"
  • Width28' 0"

Find something different

Proudly offered by

Chance's featured tours

Series - Model

  • Beds: 5
  • Baths: 3
  • Sq ft: 2,203

Series - Model

  • Beds: 5
  • Baths: 3
  • Sq ft: 2,203

Series - Model

  • Beds: 5
  • Baths: 3
  • Sq ft: 2,203