Prime Series - Monte 1676H32P06

Manufactured

Overview

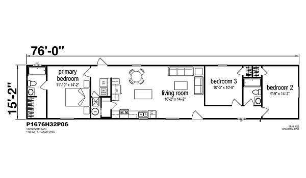
  • 3
    Bedrooms
  • 2.00
    Bathrooms
  • 1153
    Sq ft
  • 76' 0" x 15' 2"
    L x W
The Prime Series / Monte 1676H32P06 built by Champion Homes showcases a well-planned 1,153-square-foot layout that brings comfort and efficiency together. The Monte 1676H32P06 features 3 bedrooms and 2 bathrooms, with a spacious living room flowing into a practical kitchen and dining area. The primary suite offers added privacy, while the secondary bedrooms are arranged conveniently near the hall bath. This inviting design provides a balanced, easy-living feel for everyday life.

3D Tours & Videos

Floor Plan

Specifications

Ac Ready: 18 Cu.Ft. Refrigerator - Black
Additional Specs: 24" O.C. RAFTER SPACING / PLANT BUILT CHASSIS / REMOVABLE HITCH
Exterior Wall On Center: 2X4 SIDEWALLS W/ R-11
Floor Decking: 19/32" OSB FLOOR DECKING
Floor Joists: 2X6X179 16" OC FLOOR JOIST
Interior Wall On Center: 2X3 MARRIAGE WALLS
Roof Load: 20# ROOF LOAD
Side Wall Height: 8' SIDEWALL W/FLAT CEILING
Insulation (Floors): R-11 FLOOR INSULATION
Insulation (Roof): R-22 ROOF INSULATION
Shutters: SHUTTERS (FRONT DOOR SIDE)
Front Door: 38X82 METAL DOOR W/ STORM
Rear Door: 34X80 REAR OUTSWING
Shingles: 3-TAB SHINGLES
Siding: VINYL SIDING
Window Type: INSULATED WINDOWS
Exterior Outlets: EXTERIOR RECEPT FDS
Ceiling Texture: S/E TEXTURED CEILING
Wall Finish: V.O.G. DRYWALL T/O - PRIME - Sketch Prime
Interior Doors: 30" INTERIOR DOORS / 24" CLOSET DOORS
Interior Lighting: LED CAN LIGHTS PER PRINT
Interior Flooring: AF020 LINO T/O
Cabinetry & Counters: WIRE SHELF CLOSETS / ROUND CABINET KNOBS / 30" UPPER CABINETS / MDF CABINET SLAB DOORS Chai Oak / HPL ROLLED EDGE W/BACKSPLASH
Additional Specs: BATTENS VINYL WRAP
Additional Specs: (DF) 3615 ELEC FURN FLOOR DUCT / EXTERIOR FAUCET / WHOLE HOUSE SHUTOFF / 2" PVC CONDUIT
Electrical Service: 200 AMP SERVICE
Water Heater: 40 GAL ELECTRIC WATER HEATER
Bathroom Sink: PLASTIC LAVY SINKS
Bathroom Toilet Type: ROUND FRONT TOILET
Bathroom Bathtubs: 60" PLASTIC GARDEN TUB (Primary Bath) / 60" PLASTIC TUB W/SURROUND (Hall Bath)
Bathroom Mirror: 48X36 MIRROR AT VANITY (Primary Bath) / 24X36 MIRROR AT VANITY (Hall Bath)
Kitchen Sink: 6" STAINLESS STEEL SINK
Kitchen Refrigerator: 18 CF REFRIGERATOR
Kitchen Range Type: STD ELECTRIC RANGE
Kitchen Range Hood: 30" RANGE HOOD
Kitchen Cabinetry: KITCHEN OVERHEAD SHELF / 1/2" MDF STILES / 4 DRAWER BANK IN KITCHEN / 36" X 2" SHELF ABOVE FRIDGE
Kitchen Island: 58" PRIME ISLAND

Home details

  • Built byChampion Homes
  • Property typeManufactured
  • StyleRanch
  • Stories1
  • Sections1
  • Bedrooms3
  • Bathrooms2.00
  • Square feet1153
  • Length76' 0"
  • Width15' 2"

Find something different

Proudly offered by

Chance's featured tours

Series - Model

  • Beds: 5
  • Baths: 3
  • Sq ft: 2,203

Series - Model

  • Beds: 5
  • Baths: 3
  • Sq ft: 2,203

Series - Model

  • Beds: 5
  • Baths: 3
  • Sq ft: 2,203