Anthem - The Sugar Run Duplex

ManufacturedMulti-Family

Overview

  • 3
    Bedrooms
  • 2.00
    Bathrooms
  • 1050
    Sq ft
  • 76' 0" x 15' 0"
    L x W
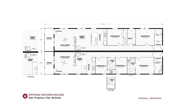
The Anthem / The Sugar Run Duplex built by Cavco is a multi-family manufactured home designed for flexibility and modern living. Each unit features 1,140 square feet, with the first half offering 3 bedrooms and 2 bathrooms, while the second half includes 2 bedrooms and 1 bathroom. This well-planned layout provides comfort, privacy, and efficiency for multiple households. The Sugar Run Duplex is a versatile housing solution with exceptional space and style.

3D Tours & Videos

Floor Plan

Specifications

No specification data available

Home details

  • Built byCavco Douglas
  • Property typeManufactured, Multi-Family
  • StyleRanch
  • Stories1
  • Sections1
  • Bedrooms3
  • Bathrooms2.00
  • Square feet1050
  • Length76' 0"
  • Width15' 0"

Find something different

Proudly offered by

Chance's featured tours

Series - Model

  • Beds: 5
  • Baths: 3
  • Sq ft: 2,203

Series - Model

  • Beds: 5
  • Baths: 3
  • Sq ft: 2,203

Series - Model

  • Beds: 5
  • Baths: 3
  • Sq ft: 2,203