NXT - Farm 3 Flex 73FRM28603AH

Manufactured

Overview

  • 3
    Bedrooms
  • 2.00
    Bathrooms
  • 1600
    Sq ft
  • 60' 0" x 28' 0"
    L x W
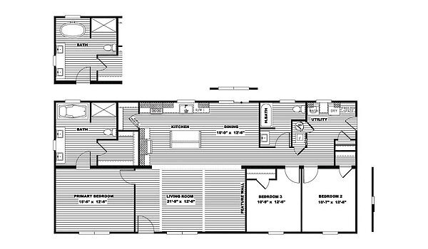
The NXT / Farm 3 Flex 73FRM28603AH built by NXT Bean Station is a comfortable home with a smart, open feel. This 1,600 square foot layout includes 3 bedrooms and 2 bathrooms, giving everyone space to unwind. The living room sits at the center and flows into the dining area and kitchen, making daily life easy and welcoming. The primary bedroom offers a quiet retreat, while the other bedrooms are great for family, guests, or a home office. With a practical design and warm style, The Farm 3 Flex 73FRM28603AH is a great place to call home.

3D Tours & Videos

No 3d Tour Available

Floor Plan

Specifications

Additional Specs: All homes are constructed with eBuilt® features
Insulation Specs: R-22/R-13/R-38 insulation values
Water Lines:
Construction Specs: Available in HUD or MOD
Dormer: Dormer over front door on multi-sections
Front Door: Craftsman Front Door (Black, White, or Blue)
Rear Door: Full View Storm Door (front door only)
Shingles: 30 Year Architectural Weatherwood shingles
Siding: Vinyl siding with LP Accent Elevations
Exterior Lighting: Dual porch lights at front door
Ceiling Fans: Black ceiling fan with light in primary bedroom and living room or den
Window Type: Lux Low E Windows, no grids with bronze finish
Interior Lighting: LED can lights throughout
Window Decor: 2” Blinds Throughout
Interior Flooring: Linoleum throughout standard in Single Sections
Additional Specs: 3” Charlynn Cherry or Alabaster White trim around doors, windows, at the ceiling, and 5 inch baseboards in linoleum areas / Charlynn Cherry or Alabaster White ceiling beams
Carpet Type Or Grade: Carpet standard in Spare BRs of Multi-Sections, Linoleum in all other areas
Cabinet System: Custom wood shelving in closets with rod
Additional Specs: Exterior Faucet front & rear / Exterior Receptacle front & rear
Electrical Service: 200 amp service
Furnace: SmartComfort® Carrier® furnace – electric
Thermostat: ecobee® Smart Thermostat
Water Heater: Rheem® hybrid heat pump 50-gallon water heater
Door Hardware: Kwikset® black interior and exterior door hardware
Doorbell: Ring® HD video doorbell
Bathroom Cabinets: Floating shelves above toilet in primary bathroom
Bathroom Sink: Square porcelain sinks
Bathroom Faucets: Pfister® black faucets in both baths
Bathroom Backsplash: White tile backsplash
Bathroom Shower: 60” fiberglass shower with black slider door in the primary bath / 60” fiberglass tub/shower combo in hall bath
Bathroom Bathtubs: Freestanding Designer Tub (Std. in Multi Sections, Optional in Single Sections)
Bathroom Mirror: Charlynn Cherry or Alabaster White trimmed mirrors
Kitchen Sink: Stainless steel farmhouse apron sink
Kitchen Lighting: Black Pendant Lights over Kitchen Island (Multi Sections)
Kitchen Faucets: Pfister® brushed nickel gooseneck faucet with sprayer
Kitchen Cabinetry: Alabaster White Overhead Cabinets with Shelf in Washer/Dryer Area / DuraCraft® cabinets with shaker profile. PVC scratch-resistant and water-repellant / Drawer over base door construction / 42” overhead cabinets
Kitchen Backsplash: White tile backsplash
Kitchen Additional Specs: USB Receptacle in Kitchen
Kitchen Appliances: Samsung® appliances in stainless steel / Package includes 22’ side-by-side with water/ice, smooth top range, dishwasher, and stainless steel microwave over range
Kitchen Island: Large single-level island

Home details

  • Built byNXT Bean Station
  • Property typeManufactured
  • StyleRanch
  • Stories1
  • Sections2
  • Bedrooms3
  • Bathrooms2.00
  • Square feet1600
  • Length60' 0"
  • Width28' 0"

Find something different

Proudly offered by

Chance's featured tours

Series - Model

  • Beds: 5
  • Baths: 3
  • Sq ft: 2,203

Series - Model

  • Beds: 5
  • Baths: 3
  • Sq ft: 2,203

Series - Model

  • Beds: 5
  • Baths: 3
  • Sq ft: 2,203