NXT - Farm 4 Flex 73FRM28724AH

Manufactured

Overview

  • 4
    Bedrooms
  • 3.00
    Bathrooms
  • 1920
    Sq ft
  • 72' 0" x 28' 0"
    L x W
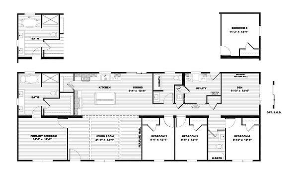
The NXT / Farm 4 Flex 73FRM28724AH built by NXT Hamilton offers a spacious and flexible 1920-square-foot layout with 4 bedrooms and 3 bathrooms designed for busy, comfortable living. The open living room flows into the kitchen and dining area, creating a warm space for everyday moments and gatherings. A private primary bedroom includes its own bath, while additional bedrooms are well spaced for comfort and privacy. With extra flex space and a smooth, family-friendly layout, The Farm 4 Flex 73FRM28724AH delivers room to grow, relax, and enjoy life at home.

3D Tours & Videos

No 3d Tour Available

Floor Plan

Specifications

Additional Specs: Zero Energy Ready Home with installation of heat pump
Insulation Specs: R-22/R-13/R-38 insulation values
Dormer: 20’ dormer with SmartPanel insert and columns
Front Door: Farmhouse Black 4 Lite Front Door
Rear Door: Full-view storm door (shipped loose) / Sliding glass patio door
Shingles: Architectural Weatherwood Shingles
Siding: Flint or White vinyl siding with OSB Sheathing
Window Type: Lux Low-E windows - 60”, 6 over 6 gridded with bronze finish
Exterior Lighting: Dual Porch Lights at Front Door
Ceiling Fans: Hunter ceiling fan in primary bedroom and living room or den
Wall Finish: Tape and textured walls throughout
Interior Lighting: LED can lights throughout
Interior Flooring: Congoleum Luxflor® linoleum standard in all living rooms, primary bedrooms and wet areas
Additional Specs: Iron Mountain Pine or White trim around doors, windows, at the ceiling and baseboards in linoleum areas / Iron Mountain Pine or White ceiling beams / USB recep in islands / Large single level island
Carpet Type Or Grade: Shaw Resilient® R2X® 25oz residential carpet is standard in spare bedrooms with built-in stain treatment
Cabinet System: Tape and Texture Closets with wire shelving
Electrical Service: 200 Amp service
Furnace: Smart Comfort Carrier® Furnace
Thermostat: ecobee Smart Thermostat® Programmable thermostat (smart phone app available)
Water Heater: 40 Gal Rheem® ProTerra Hybrid Water Heater
Door Hardware: Ring® HD video doorbell with interior chime (Smartphone APP available) / Kwikset® black interior and exterior door hardware
Bathroom Sink: Square porcelain sinks
Bathroom Faucets: Pfister® black faucets in both baths
Bathroom Shower: 60” fiberglass shower with black pivot door in primary bath / 60” Fiberglass tub/shower combo in hall bath
Bathroom Bathtubs: Optional freestanding fiberglass tub in primary bath
Bathroom Mirror: Iron Mountain Pine or White trimmed mirrors
Kitchen Sink: Stainless steel farmhouse apron sink
Kitchen Lighting: 2 Black pendant lights over the island
Kitchen Faucets: Pfister® Black pulldown, faucet
Kitchen Cabinetry: DuraCraft® cabinets in two colors with shaker profile. PVC scratch resistant and water repellant. / Drawer over base door construction / 43” overhead cabinets
Kitchen Appliances: Frigidaire® appliances in stainless steel / Package includes 26 side by side with water/ice smooth top range, dishwasher and over the range microwave

Home details

  • Built byNXT Hamilton
  • Property typeManufactured
  • StyleRanch
  • Stories1
  • Sections2
  • Bedrooms4
  • Bathrooms3.00
  • Square feet1920
  • Length72' 0"
  • Width28' 0"

Find something different

Proudly offered by

Chance's featured tours

Series - Model

  • Beds: 5
  • Baths: 3
  • Sq ft: 2,203

Series - Model

  • Beds: 5
  • Baths: 3
  • Sq ft: 2,203

Series - Model

  • Beds: 5
  • Baths: 3
  • Sq ft: 2,203