Independence Series - Clymer 3044

Manufactured

Overview

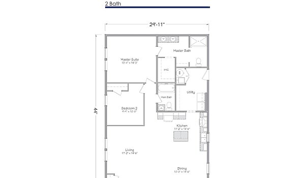
  • 2
    Bedrooms
  • 2.00
    Bathrooms
  • 1316
    Sq ft
  • 44' 0" x 29' 11"
    L x W
The Independence Series / Clymer 3044 built by Master-Craft offers a bright and welcoming layout with 2 bedrooms, 2 bathrooms, and 1316 square feet of comfortable living space. The open kitchen and dining area flow easily into the living room, creating a warm place to relax or host friends. A roomy master suite and handy utility area add even more ease to daily life. The Clymer 3044 brings comfort and charm together in a home you’ll love.

3D Tours & Videos

No 3d Tour Available

Floor Plan

Specifications

No specification data available

Home details

  • Built byMaster-Craft
  • Property typeManufactured
  • StyleRanch
  • Stories1
  • Sections2
  • Bedrooms2
  • Bathrooms2.00
  • Square feet1316
  • Length44' 0"
  • Width29' 11"

Find something different

Proudly offered by

Chance's featured tours

Series - Model

  • Beds: 5
  • Baths: 3
  • Sq ft: 2,203

Series - Model

  • Beds: 5
  • Baths: 3
  • Sq ft: 2,203

Series - Model

  • Beds: 5
  • Baths: 3
  • Sq ft: 2,203