Independence Series - Witherspoon 3056

Manufactured

Overview

  • 3
    Bedrooms
  • 2.00
    Bathrooms
  • 1589
    Sq ft
  • 50' 6" x 29' 11"
    L x W
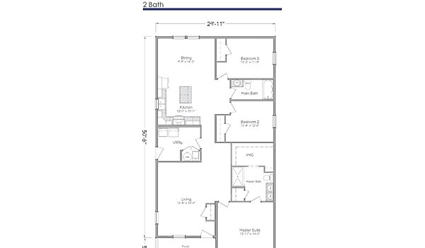
The Independence Series / Witherspoon 3056 built by Master-Craft offers a bright and welcoming layout with 3 bedrooms, 2 bathrooms, and 1589 square feet of comfortable living space. The open kitchen and dining area flow easily into the living room, creating a warm place to gather. A spacious master suite adds extra comfort. The Witherspoon 3056 delivers a cozy and easy-to-love design for everyday living.

3D Tours & Videos

No 3d Tour Available

Floor Plan

Specifications

No specification data available

Home details

  • Built byMaster-Craft
  • Property typeManufactured
  • StyleRanch
  • Stories1
  • Sections2
  • Bedrooms3
  • Bathrooms2.00
  • Square feet1589
  • Length50' 6"
  • Width29' 11"

Find something different

Proudly offered by

Chance's featured tours

Series - Model

  • Beds: 5
  • Baths: 3
  • Sq ft: 2,203

Series - Model

  • Beds: 5
  • Baths: 3
  • Sq ft: 2,203

Series - Model

  • Beds: 5
  • Baths: 3
  • Sq ft: 2,203