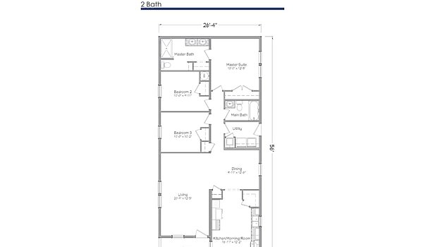
Independence Series - Braxton 2856

Manufactured

Overview

  • 3
    Bedrooms
  • 2.00
    Bathrooms
  • 1403
    Sq ft
  • 56' 0" x 26' 4"
    L x W
The Independence Series / Braxton 2856 built by Master-Craft offers a bright and welcoming layout with 3 bedrooms, 2 bathrooms, and 1403 square feet of comfortable living space. The open kitchen and dining area flow into a cheerful living room, while the master suite sits privately at the back. With smart room placement and an easygoing feel, The Braxton 2856 is a great place to come home to.

3D Tours & Videos

No 3d Tour Available

Floor Plan

Specifications

No specification data available

Home details

  • Built byMaster-Craft
  • Property typeManufactured
  • StyleRanch
  • Stories1
  • Sections2
  • Bedrooms3
  • Bathrooms2.00
  • Square feet1403
  • Length56' 0"
  • Width26' 4"

Find something different

Proudly offered by

Chance's featured tours

Series - Model

  • Beds: 5
  • Baths: 3
  • Sq ft: 2,203

Series - Model

  • Beds: 5
  • Baths: 3
  • Sq ft: 2,203

Series - Model

  • Beds: 5
  • Baths: 3
  • Sq ft: 2,203