Independence Series - Sherman 3052

Manufactured

Overview

  • 3
    Bedrooms
  • 2.00
    Bathrooms
  • 1481
    Sq ft
  • 47' 5" x 29' 11"
    L x W
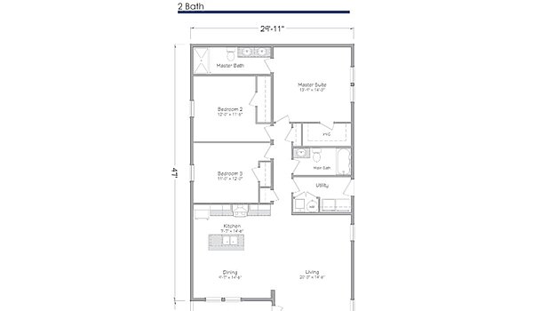
The Independence Series / Sherman 3052 built by Master-Craft offers a bright and welcoming layout with 3 bedrooms, 2 bathrooms, and 1481 square feet of comfortable living space. The open kitchen, dining, and living areas make everyday life easy, while the private master suite adds a peaceful retreat. With smart use of every room, The Sherman 3052 brings practical style to modern living.

3D Tours & Videos

No 3d Tour Available

Floor Plan

Specifications

No specification data available

Home details

  • Built byMaster-Craft
  • Property typeManufactured
  • StyleRanch
  • Stories1
  • Sections2
  • Bedrooms3
  • Bathrooms2.00
  • Square feet1481
  • Length47' 5"
  • Width29' 11"

Find something different

Proudly offered by

Chance's featured tours

Series - Model

  • Beds: 5
  • Baths: 3
  • Sq ft: 2,203

Series - Model

  • Beds: 5
  • Baths: 3
  • Sq ft: 2,203

Series - Model

  • Beds: 5
  • Baths: 3
  • Sq ft: 2,203