Liberty Series 30-Wide - Brearley 3052B

Manufactured

Overview

  • 3
    Bedrooms
  • 2.00
    Bathrooms
  • 1556
    Sq ft
  • 52' 0" x 29' 11"
    L x W
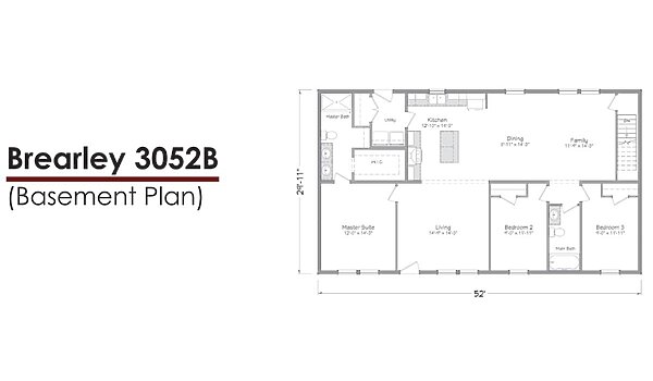
The Liberty Series 30-Wide / Brearley 3052B built by Master-Craft offers 1,556 sq. ft. of inviting living space with 3 bedrooms and 2 bathrooms. The Brearley 3052B features a bright kitchen that connects to open dining and family areas, creating plenty of room to gather. The private master suite sits near the utility area, while two bedrooms share a convenient hall bath. This welcoming layout makes everyday living feel easy and comfortable.

3D Tours & Videos

No 3d Tour Available

Floor Plan

Specifications

No specification data available

Home details

  • Built byMaster-Craft
  • Property typeManufactured
  • StyleRanch
  • Stories1
  • Sections2
  • Bedrooms3
  • Bathrooms2.00
  • Square feet1556
  • Length52' 0"
  • Width29' 11"

Find something different

Proudly offered by

Chance's featured tours

Series - Model

  • Beds: 5
  • Baths: 3
  • Sq ft: 2,203

Series - Model

  • Beds: 5
  • Baths: 3
  • Sq ft: 2,203

Series - Model

  • Beds: 5
  • Baths: 3
  • Sq ft: 2,203