Liberty Series 28-Wide - Baldwin 2844B

Manufactured

Overview

  • 3
    Bedrooms
  • 2.00
    Bathrooms
  • 1158
    Sq ft
  • 44' 0" x 26' 4"
    L x W
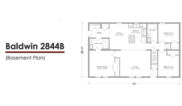
The Liberty Series 28-Wide / Baldwin 2844B built by Master-Craft offers a bright and easy-to-love layout across 1,158 sq. ft. with 3 bedrooms and 2 bathrooms. The Baldwin 2844B features an open living area flowing into the kitchen and dining space, creating a warm spot for daily life. The master suite sits privately at one end, while two more bedrooms share a convenient hall bath. This balanced design brings comfort and simplicity together beautifully.

3D Tours & Videos

No 3d Tour Available

Floor Plan

Specifications

No specification data available

Home details

  • Built byMaster-Craft
  • Property typeManufactured
  • StyleRanch
  • Stories1
  • Sections2
  • Bedrooms3
  • Bathrooms2.00
  • Square feet1158
  • Length44' 0"
  • Width26' 4"

Find something different

Proudly offered by

Chance's featured tours

Series - Model

  • Beds: 5
  • Baths: 3
  • Sq ft: 2,203

Series - Model

  • Beds: 5
  • Baths: 3
  • Sq ft: 2,203

Series - Model

  • Beds: 5
  • Baths: 3
  • Sq ft: 2,203