Freedom Series - Sumter 1676

Manufactured

Overview

  • 3
    Bedrooms
  • 2.00
    Bathrooms
  • 1165
    Sq ft
  • 76' 0" x 16' 0"
    L x W
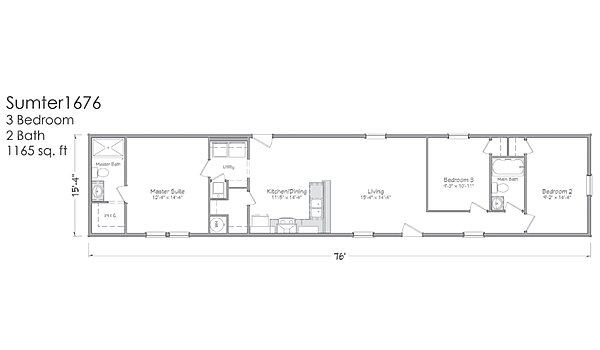
The Freedom Series / Sumter 1676 built by Master-Craft offers a well-balanced layout featuring 3 bedrooms, 2 bathrooms, and 1,165 sq. ft. of inviting space. The Sumter 1676 includes a spacious master suite with a private bath, a central kitchen and dining area, and a comfortable living room perfect for everyday living. Two secondary bedrooms sit near the main bath, creating a practical flow for families. With its thoughtful layout, The Sumter 1676 delivers comfort and convenience for modern living.

3D Tours & Videos

No 3d Tour Available

Floor Plan

Specifications

No specification data available

Home details

  • Built byMaster-Craft
  • Property typeManufactured
  • StyleRanch
  • Stories1
  • Sections1
  • Bedrooms3
  • Bathrooms2.00
  • Square feet1165
  • Length76' 0"
  • Width16' 0"

Find something different

Proudly offered by

Chance's featured tours

Series - Model

  • Beds: 5
  • Baths: 3
  • Sq ft: 2,203

Series - Model

  • Beds: 5
  • Baths: 3
  • Sq ft: 2,203

Series - Model

  • Beds: 5
  • Baths: 3
  • Sq ft: 2,203