Freedom Series - Matlack 1676

Manufactured

Overview

  • 3
    Bedrooms
  • 2.00
    Bathrooms
  • 1165
    Sq ft
  • 76' 0" x 15' 4"
    L x W
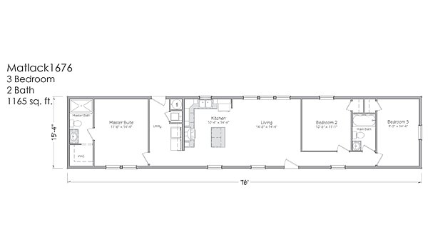
The Freedom Series / Matlack 1676 built by Master-Craft offers a smart and inviting layout with 3 bedrooms, 2 bathrooms, and 1165 sq. ft., featuring a spacious master suite, a well-appointed kitchen with center island, and an open living area designed for comfort. With two additional bedrooms and a centrally located bath, The Matlack 1676 delivers functionality and ease for everyday living. This home brings together style and practicality for a well-rounded living experience.

3D Tours & Videos

No 3d Tour Available

Floor Plan

Specifications

No specification data available

Home details

  • Built byMaster-Craft
  • Property typeManufactured
  • StyleRanch
  • Stories1
  • Sections1
  • Bedrooms3
  • Bathrooms2.00
  • Square feet1165
  • Length76' 0"
  • Width15' 4"

Find something different

Proudly offered by

Chance's featured tours

Series - Model

  • Beds: 5
  • Baths: 3
  • Sq ft: 2,203

Series - Model

  • Beds: 5
  • Baths: 3
  • Sq ft: 2,203

Series - Model

  • Beds: 5
  • Baths: 3
  • Sq ft: 2,203