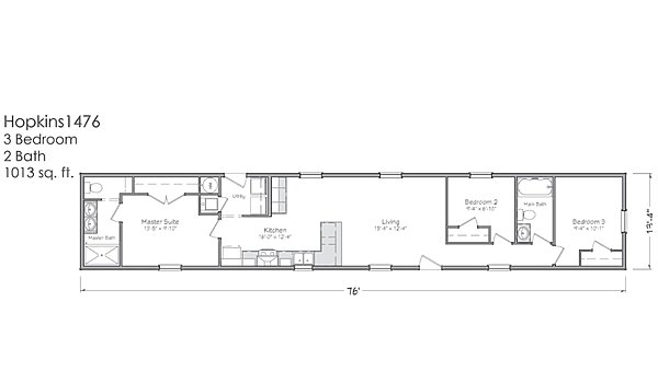
Freedom Series - Hopkins 1476

Manufactured

Overview

  • 3
    Bedrooms
  • 2.00
    Bathrooms
  • 1013
    Sq ft
  • 76' 0" x 13' 4"
    L x W
The Freedom Series / Hopkins 1476 built by Master-Craft delivers a welcoming layout with 3 bedrooms, 2 bathrooms, and 1013 sq. ft. The Hopkins 1476 features a spacious master suite with a private bath, a central kitchen with ample workspace, and an open living area designed for everyday comfort. Two additional bedrooms sit near the main bath, offering convenience and flexibility. This home blends smart design with practical living.

3D Tours & Videos

No 3d Tour Available

Floor Plan

Specifications

No specification data available

Home details

  • Built byMaster-Craft
  • Property typeManufactured
  • StyleRanch
  • Stories1
  • Sections1
  • Bedrooms3
  • Bathrooms2.00
  • Square feet1013
  • Length76' 0"
  • Width13' 4"

Find something different

Proudly offered by

Chance's featured tours

Series - Model

  • Beds: 5
  • Baths: 3
  • Sq ft: 2,203

Series - Model

  • Beds: 5
  • Baths: 3
  • Sq ft: 2,203

Series - Model

  • Beds: 5
  • Baths: 3
  • Sq ft: 2,203