Freedom Series - Trumbull 1672

Manufactured

Overview

  • 2
    Bedrooms
  • 2.00
    Bathrooms
  • 1104
    Sq ft
  • 72' 0" x 15' 4"
    L x W
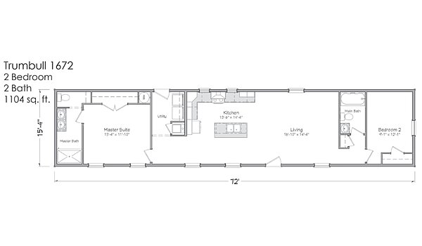
The Freedom Series / Trumbull 1672 built by Master-Craft delivers a smart and inviting layout with 2 bedrooms, 2 bathrooms, and 1104 sq. ft. The Trumbull 1672 features a spacious master suite with its own bath, a well-designed kitchen with a center island, and an open living area that creates a warm and functional flow. A second bedroom and full bath sit conveniently at the opposite end for added privacy. This home brings comfort and practicality together beautifully.

3D Tours & Videos

No 3d Tour Available

Floor Plan

Specifications

No specification data available

Home details

  • Built byMaster-Craft
  • Property typeManufactured
  • StyleRanch
  • Stories1
  • Sections1
  • Bedrooms2
  • Bathrooms2.00
  • Square feet1104
  • Length72' 0"
  • Width15' 4"

Find something different

Proudly offered by

Chance's featured tours

Series - Model

  • Beds: 5
  • Baths: 3
  • Sq ft: 2,203

Series - Model

  • Beds: 5
  • Baths: 3
  • Sq ft: 2,203

Series - Model

  • Beds: 5
  • Baths: 3
  • Sq ft: 2,203