Freedom Series - Shipley 1672

Manufactured

Overview

  • 3
    Bedrooms
  • 2.00
    Bathrooms
  • 1104
    Sq ft
  • 72' 0" x 15' 4"
    L x W
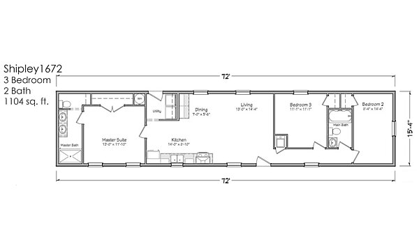
The Freedom Series / Shipley 1672 built by Master-Craft offers a well-planned layout with 3 bedrooms, 2 bathrooms, and 1104 square feet, creating a comfortable living space designed for everyday ease. The kitchen opens to the dining and living areas, while the master suite sits privately at one end, with two additional bedrooms and a full bath on the opposite side. With its smart flow and inviting rooms, The Shipley 1672 delivers a balanced design that feels welcoming from the start.

3D Tours & Videos

No 3d Tour Available

Floor Plan

Specifications

No specification data available

Home details

  • Built byMaster-Craft
  • Property typeManufactured
  • StyleRanch
  • Stories1
  • Sections1
  • Bedrooms3
  • Bathrooms2.00
  • Square feet1104
  • Length72' 0"
  • Width15' 4"

Find something different

Proudly offered by

Chance's featured tours

Series - Model

  • Beds: 5
  • Baths: 3
  • Sq ft: 2,203

Series - Model

  • Beds: 5
  • Baths: 3
  • Sq ft: 2,203

Series - Model

  • Beds: 5
  • Baths: 3
  • Sq ft: 2,203