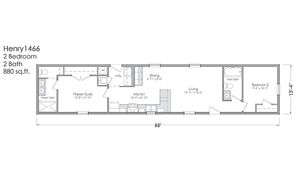
The Freedom Series / Henry 1466 built by Master-Craft offers an inviting 2-bedroom, 2-bathroom layout across 880 sq. ft., featuring a spacious master suite with its own bath, a centrally located kitchen with dedicated dining space, and a comfortable living area that flows naturally for everyday ease. With a second bedroom positioned near the main bath, The Henry 1466 delivers efficient design and practical comfort. This home is crafted to make daily living feel simple and connected.