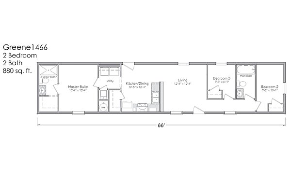
The Freedom Series / Greene 1466 built by Master-Craft offers a smart and welcoming layout designed to make everyday living simple and comfortable. With 880 sq. ft. of space, The Greene 1466 features 2 bedrooms and 2 bathrooms, including a well-appointed master suite with its own bath. The central kitchen and dining area flow into a bright living room, while the second bedroom is conveniently located near the main bath. This efficient design delivers comfort and value in every square foot.