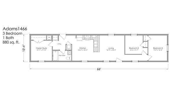
The Freedom Series / Adams 1466 built by Master-Craft offers a smart 880 sq. ft. layout with 3 bedrooms and 1 bathroom, blending comfort and practical living. The Adams 1666 features a private master suite near the main bath and utility area, while the kitchen opens to a spacious living room for easy daily flow. Two secondary bedrooms sit on the opposite end, creating separation and convenience. With its efficient layout, The Adams 1666 provides a warm and functional place to call home.