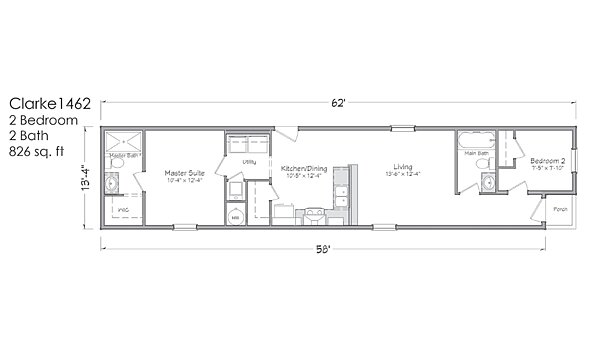
Freedom Series - Clark 1462

Manufactured

Overview

  • 2
    Bedrooms
  • 2.00
    Bathrooms
  • 826
    Sq ft
  • 62' 0" x 14' 0"
    L x W
The Freedom Series / Clark 1462 built by Master-Craft offers a well-designed 826 sq. ft. layout featuring 2 bedrooms and 2 bathrooms, blending efficiency with comfortable living. The Clark 1462 includes a private master suite with its own bath, a functional kitchen/dining area, and a bright living space positioned near the secondary bedroom and main bath. With its thoughtful arrangement and inviting flow, The Clark 1462 creates a cozy and practical living experience.

3D Tours & Videos

No 3d Tour Available

Floor Plan

Specifications

No specification data available

Home details

  • Built byMaster-Craft
  • Property typeManufactured
  • StyleRanch
  • Stories1
  • Sections1
  • Bedrooms2
  • Bathrooms2.00
  • Square feet826
  • Length62' 0"
  • Width14' 0"

Find something different

Proudly offered by

Chance's featured tours

Series - Model

  • Beds: 5
  • Baths: 3
  • Sq ft: 2,203

Series - Model

  • Beds: 5
  • Baths: 3
  • Sq ft: 2,203

Series - Model

  • Beds: 5
  • Baths: 3
  • Sq ft: 2,203