Freedom Series - Hamilton 1452

Manufactured

Overview

  • 2
    Bedrooms
  • 1.00
    Bathrooms
  • 720
    Sq ft
  • 52' 0" x 14' 0"
    L x W
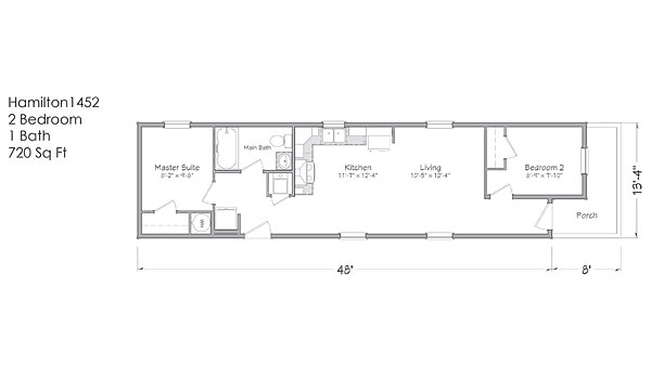
The Freedom Series / Hamilton 1452 built by Master-Craft offers an efficient 720 sq. ft. layout with 2 bedrooms and 1 bathroom. The Hamilton 1452 features a cozy primary suite near the centrally located main bath, while the secondary bedroom sits beside the inviting front porch. An open kitchen flows into a bright living area, creating a comfortable space for daily living. Thoughtfully arranged and easy to maintain, The Hamilton 1452 delivers practical comfort in a compact design.

3D Tours & Videos

No 3d Tour Available

Floor Plan

Specifications

No specification data available

Home details

  • Built byMaster-Craft
  • Property typeManufactured
  • StyleRanch
  • Stories1
  • Sections1
  • Bedrooms2
  • Bathrooms1.00
  • Square feet720
  • Length52' 0"
  • Width14' 0"

Find something different

Proudly offered by

Chance's featured tours

Series - Model

  • Beds: 5
  • Baths: 3
  • Sq ft: 2,203

Series - Model

  • Beds: 5
  • Baths: 3
  • Sq ft: 2,203

Series - Model

  • Beds: 5
  • Baths: 3
  • Sq ft: 2,203