Freedom Series - Hamilton 1652

Manufactured

Overview

  • 2
    Bedrooms
  • 1.00
    Bathrooms
  • 797
    Sq ft
  • 52' 0" x 15' 4"
    L x W
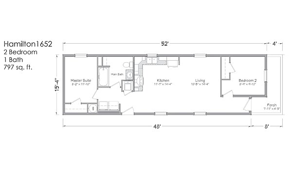
The Freedom Series / Hamilton 1652 built by Master-Craft features a smart 797 sq. ft. layout with 2 bedrooms and 1 bathroom. The Hamilton 1652 offers a comfortable primary suite, a well-placed main bath, and a secondary bedroom tucked privately near the front porch. The kitchen and living area create an open, welcoming space that makes everyday living easy and functional. Thoughtfully arranged and efficient, The Hamilton 1652 delivers comfort in a compact footprint.

3D Tours & Videos

No 3d Tour Available

Floor Plan

Specifications

No specification data available

Home details

  • Built byMaster-Craft
  • Property typeManufactured
  • StyleRanch
  • Stories1
  • Sections1
  • Bedrooms2
  • Bathrooms1.00
  • Square feet797
  • Length52' 0"
  • Width15' 4"

Find something different

Proudly offered by

Chance's featured tours

Series - Model

  • Beds: 5
  • Baths: 3
  • Sq ft: 2,203

Series - Model

  • Beds: 5
  • Baths: 3
  • Sq ft: 2,203

Series - Model

  • Beds: 5
  • Baths: 3
  • Sq ft: 2,203