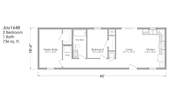
Freedom Series - Jay 1648

Manufactured

Overview

  • 2
    Bedrooms
  • 1.00
    Bathrooms
  • 736
    Sq ft
  • 48' 0" x 15' 4"
    L x W
The Freedom Series / Jay 1648 built by Master-Craft offers an efficient and welcoming 736 sq. ft. layout with 2 bedrooms and 1 bathroom. The Jay 1648 features a bright living area flowing into a practical kitchen, along with a comfortable primary suite and a second bedroom ideal for guests or daily needs. A centrally located bath and thoughtful storage add convenience. This well-designed home delivers comfort and simplicity in a compact footprint.

3D Tours & Videos

No 3d Tour Available

Floor Plan

Specifications

No specification data available

Home details

  • Built byMaster-Craft
  • Property typeManufactured
  • StyleRanch
  • Stories1
  • Sections1
  • Bedrooms2
  • Bathrooms1.00
  • Square feet736
  • Length48' 0"
  • Width15' 4"

Find something different

Proudly offered by

Chance's featured tours

Series - Model

  • Beds: 5
  • Baths: 3
  • Sq ft: 2,203

Series - Model

  • Beds: 5
  • Baths: 3
  • Sq ft: 2,203

Series - Model

  • Beds: 5
  • Baths: 3
  • Sq ft: 2,203