Altitude Series - Kritzer 2856H32A4A

Manufactured

Overview

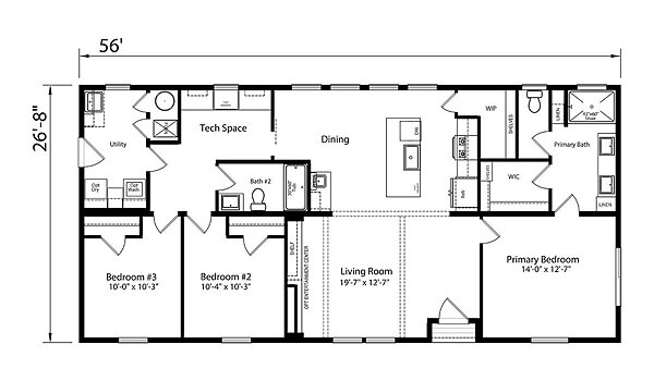
  • 3
    Bedrooms
  • 2.00
    Bathrooms
  • 1484
    Sq ft
  • 56' 0" x 26' 8"
    L x W
The Altitude Series / Kritzer 2856H32A4A offers 1,484 sq. ft. of thoughtfully designed living space with 3 bedrooms and 2 baths. The open layout creates a welcoming flow, highlighted by a beautiful kitchen with a spacious island ideal for everyday living and entertaining. A dedicated tech area provides the perfect spot for a home office or workspace, while modern finishes and balanced design details bring style, comfort, and functionality together seamlessly.

3D Tours & Videos

Floor Plan

Specifications

Additional Specs: Professionally Curated Colors and Materials Throughout
Package: ENERGY STAR® Standard
Additional Specs: Modern Exterior Elevation with Woodgrain Cladding Accent
Dormer: Unique Offset Dormer
Front Door: Exterior Package with Black Entry Door and Black Windows for Distinctive Curb Appeal
Ceiling Fans: Ceiling Fan in Open-Concept Living Room
Interior Flooring: High-Quality Vinyl Flooring in Common Areas with Carpet in Bedrooms
Cabinetry & Counters: Walk-in Closet for Primary Suite with Open Shelving for Extra Storage
Thermostat: Smart Thermostat
Water Heater: Rheem® Water Heater
Bathroom Shower: Spacious Primary Bedroom with En Suite Bath Including Walk-in Shower, Teak Shower Seat and Black Faucets / Fiberglass Tub Shower with Framed Vanity Mirror and Black Faucets in Secondary Bath
Kitchen Sink: Designer Sink and Faucet
Kitchen Lighting: Upgraded Lighting in Kitchen
Kitchen Additional Specs: Expansive Kitchen with Full Pantry, Tile Backsplash and Full Overlay
Kitchen Appliances: Stainless Steel Whirlpool® Appliances, Including Dishwasher and Built-in Microwave

Home details

  • Built bySkyline Homes
  • Property typeManufactured
  • StyleRanch
  • Stories1
  • Sections2
  • Bedrooms3
  • Bathrooms2.00
  • Square feet1484
  • Length56' 0"
  • Width26' 8"

Find something different

Proudly offered by

Chance's featured tours

Series - Model

  • Beds: 5
  • Baths: 3
  • Sq ft: 2,203

Series - Model

  • Beds: 5
  • Baths: 3
  • Sq ft: 2,203

Series - Model

  • Beds: 5
  • Baths: 3
  • Sq ft: 2,203