Lake Charles - LH13361B

Manufactured

Overview

  • 1
    Bedrooms
  • 1.00
    Bathrooms
  • 500
    Sq ft
  • 36' 0" x 13' 0"
    L x W
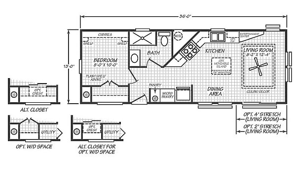
The Lake Charles / LH13361B, constructed by Chariot Eagle, harmoniously combines elegance and comfort. Spanning 500 square feet, this park model home features a flowing layout that effortlessly connects the kitchen, dining room, and living room, creating an inviting space for relaxation and socializing. With 1 bedroom and 1 bathroom, this residence offers both functionality and style. The LH13361B presents a compact and well-designed living solution, exceeding your expectations.

3D Tours & Videos

No 3d Tour Available

Floor Plan

Specifications

No specification data available

Home details

  • Built byChariot Eagle
  • Property typeManufactured
  • StyleRanch
  • Stories1
  • Sections1
  • Bedrooms1
  • Bathrooms1.00
  • Square feet500
  • Length36' 0"
  • Width13' 0"

Find something different

Chance's featured tours

Series - Model

  • Beds: 5
  • Baths: 3
  • Sq ft: 2,203

Series - Model

  • Beds: 5
  • Baths: 3
  • Sq ft: 2,203

Series - Model

  • Beds: 5
  • Baths: 3
  • Sq ft: 2,203